Chmielniki Średnie r 1

Informacje podstawowe

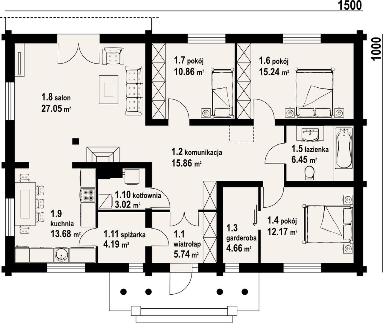
Pow. użytkowa

117.37 m2

Część gospodarcza

7.9 m2

Pow. zabudowy

150 m2

Parterowy

Tak

Garaż

Nie

Piwnica

Nie

Technologia

Ściany zewnętrzne

bal

Strop

drewniany

Więźba dachowa

drewniana

Pokrycie dachu

blachodachówka / blacha z posypką

Parterowy dom o bardzo funkcjonalnym układzie pomieszczeń. Kominek w salonie z możliwością rozprowadzenia ciepła. Wydzielona kotłownia i spiżarka. Kuchnia częściowo otwarta na salon, trzy sypialnie w tym jedna z garderobą.

Porozmawiajmy o Twoim wymarzonym domu

Drewhat telefon

Zadzwoń

+48 13 30 70 199
Drewhat email

Napisz do nas

biuro@drewhat.pl

Jesteśmy dostępni w dni robocze: 07:30-16:00

Sprawdź także