Informacje podstawowe
Pow. użytkowa
118.79 m2
Część gospodarcza
27.85 m2
Pow. zabudowy
120.3 m2
Parterowy
Tak
Garaż
Tak
Piwnica
Nie
Technologia
Ściany zewnętrzne
bal
Strop
drewniany
Więźba dachowa
drewniana
Pokrycie dachu
blachodachówka / blacha z posypką
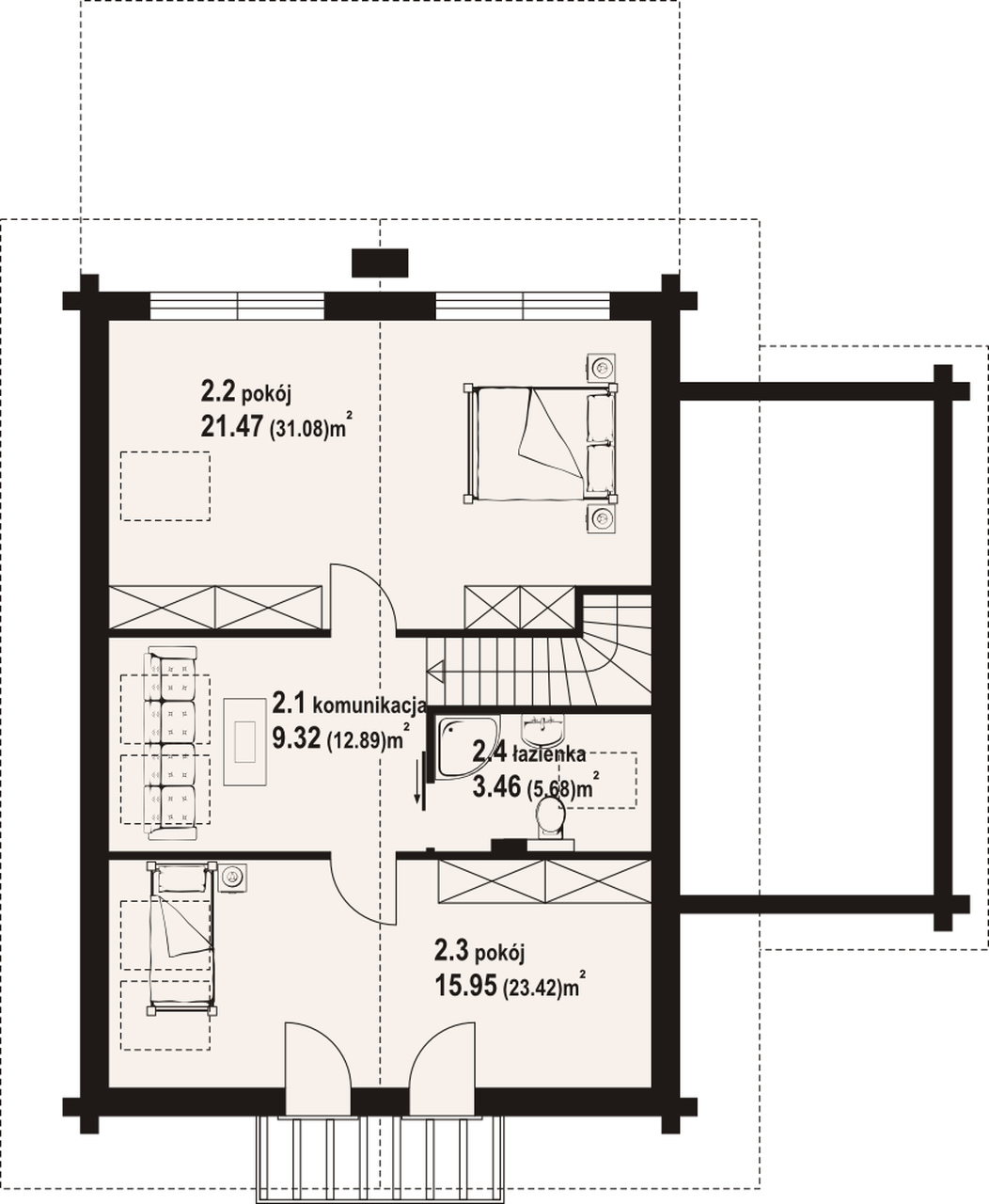
Dom z bali. Duży salon z aneksem kuchennym, kominkiem, schodami na poddasze i wyjściem na zadaszony taras. Na tarasie kominek. Pokój, łazienka, pralnia, wiatrołap i garaż. Na poddaszu dwa pokoje, łazienka, komunikacja i balkon.
Porozmawiajmy o Twoim wymarzonym domu
Zadzwoń
+48 13 30 70 199Napisz do nas
biuro@drewhat.plJesteśmy dostępni w dni robocze: 07:30-16:00


