Milicz dw

Informacje podstawowe

Pow. użytkowa

132.43 m2

Część gospodarcza

26.81 m2

Pow. zabudowy

115.5 m2

Parterowy

Tak

Garaż

Tak

Piwnica

Nie

Technologia

Ściany zewnętrzne

bal

Strop

drewniany

Więźba dachowa

drewniana

Pokrycie dachu

blachodachówka / blacha z posypką

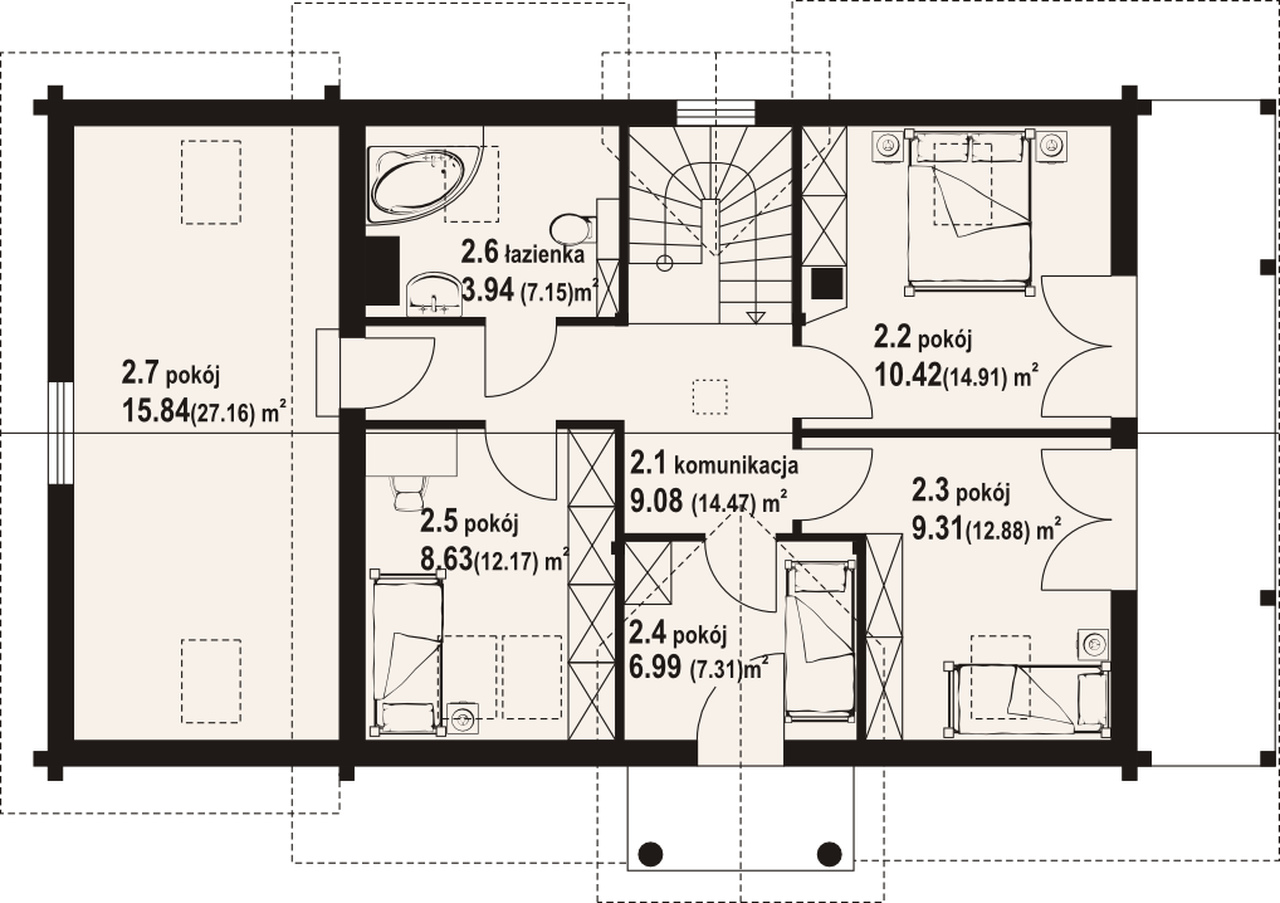
Dom z bali drewnianych. Sześć pokoi, dwie łazienki, aneks kuchenny, wiatrołap, kotłownia, garaż. Duży salon z aneksem kuchennym, kominkiem, schodami na poddasze i wyjściem na taras. Pięć pokoi na poddaszu (w tym trzy z balkonem). Instalacja solarna. Liczne warianty projektu.

Porozmawiajmy o Twoim wymarzonym domu

Drewhat telefon

Zadzwoń

+48 13 30 70 199
Drewhat email

Napisz do nas

biuro@drewhat.pl

Jesteśmy dostępni w dni robocze: 07:30-16:00

Sprawdź także