Informacje podstawowe
Pow. użytkowa
151 m2
Część gospodarcza
11.91 m2
Pow. zabudowy
118.15 m2
Parterowy
Nie
Garaż
Nie
Piwnica
Nie
Technologia
Ściany zewnętrzne
bal
Strop
drewniany
Więźba dachowa
drewniana
Pokrycie dachu
blachodachówka / blacha z posypką
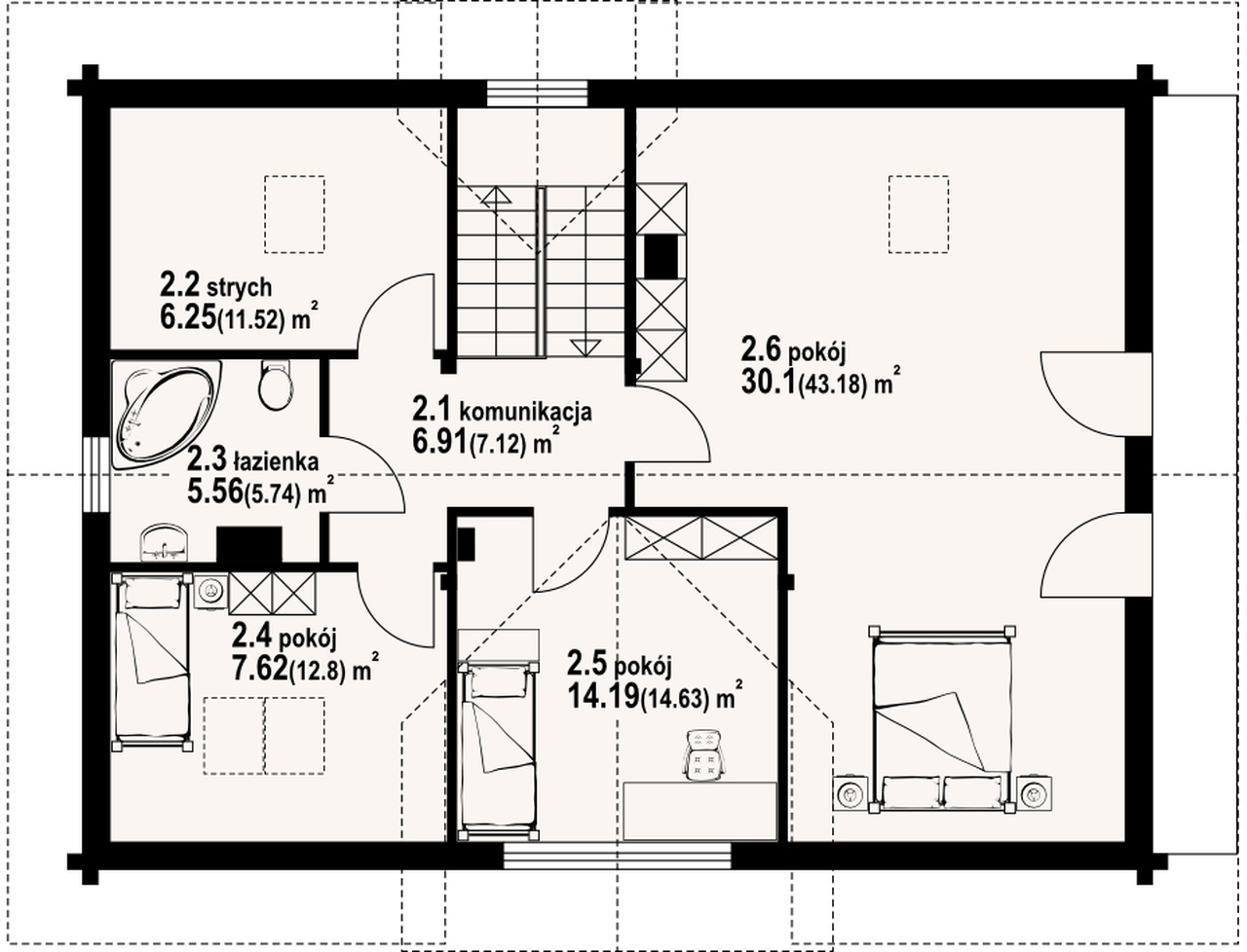
Dom z bali drewnianych. Duży salon z kominkiem, wyjściami na taras i schodami na poddasze, kuchnia, pokój, kotłownia, wiatrołap i korytarz. Na poddaszu trzy pokoje, łazienka, komunikacja i balkon. Zwarta bryła budynki i dach dwuspadowy sprzyjają łatwej i szybkiej budowie i niskim kosztom eksploatacji.
Porozmawiajmy o Twoim wymarzonym domu
Zadzwoń
+48 13 30 70 199Napisz do nas
biuro@drewhat.plJesteśmy dostępni w dni robocze: 07:30-16:00


