Informacje podstawowe
Pow. użytkowa
126.15 m2
Część gospodarcza
30.53 m2
Pow. zabudowy
118.5 m2
Parterowy
Tak
Garaż
Tak
Piwnica
Nie
Technologia
Ściany zewnętrzne
bal
Strop
drewniany
Więźba dachowa
drewniana
Pokrycie dachu
blachodachówka / blacha z posypką
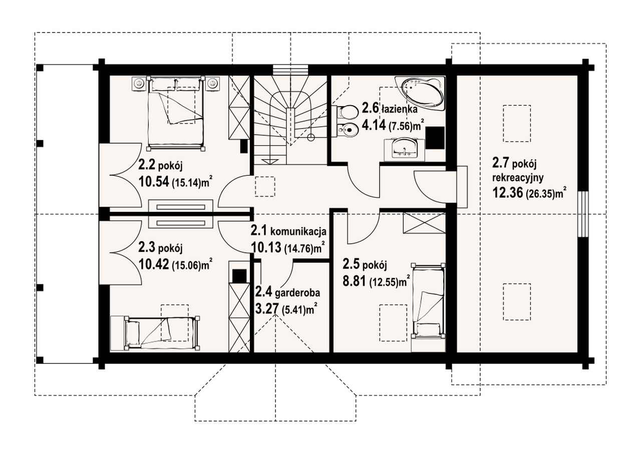
Dom z bali drewnianych. Duży salon z aneksem kuchennym, kominkiem i wyjściem na taras. Pokój. łazienka, komunikacja, wiatrołap, garaż, kotłownia. Na poddaszu cztery pokoje, łazienka, garderoba, komunikacja i balkon. Zwarta bryła budynku i dach dwuspadowy sprzyjają szybkie i taniej budowie i niskim kosztom eksploatacji.
Porozmawiajmy o Twoim wymarzonym domu
Zadzwoń
+48 13 30 70 199Napisz do nas
biuro@drewhat.plJesteśmy dostępni w dni robocze: 07:30-16:00


