Informacje podstawowe
Pow. użytkowa
108.24 m2
Część gospodarcza
36 m2
Pow. zabudowy
125.64 m2
Parterowy
Tak
Garaż
Tak
Piwnica
Nie
Technologia
Ściany zewnętrzne
bal
Strop
drewniany
Więźba dachowa
drewniana
Pokrycie dachu
blachodachówka / blacha z posypką
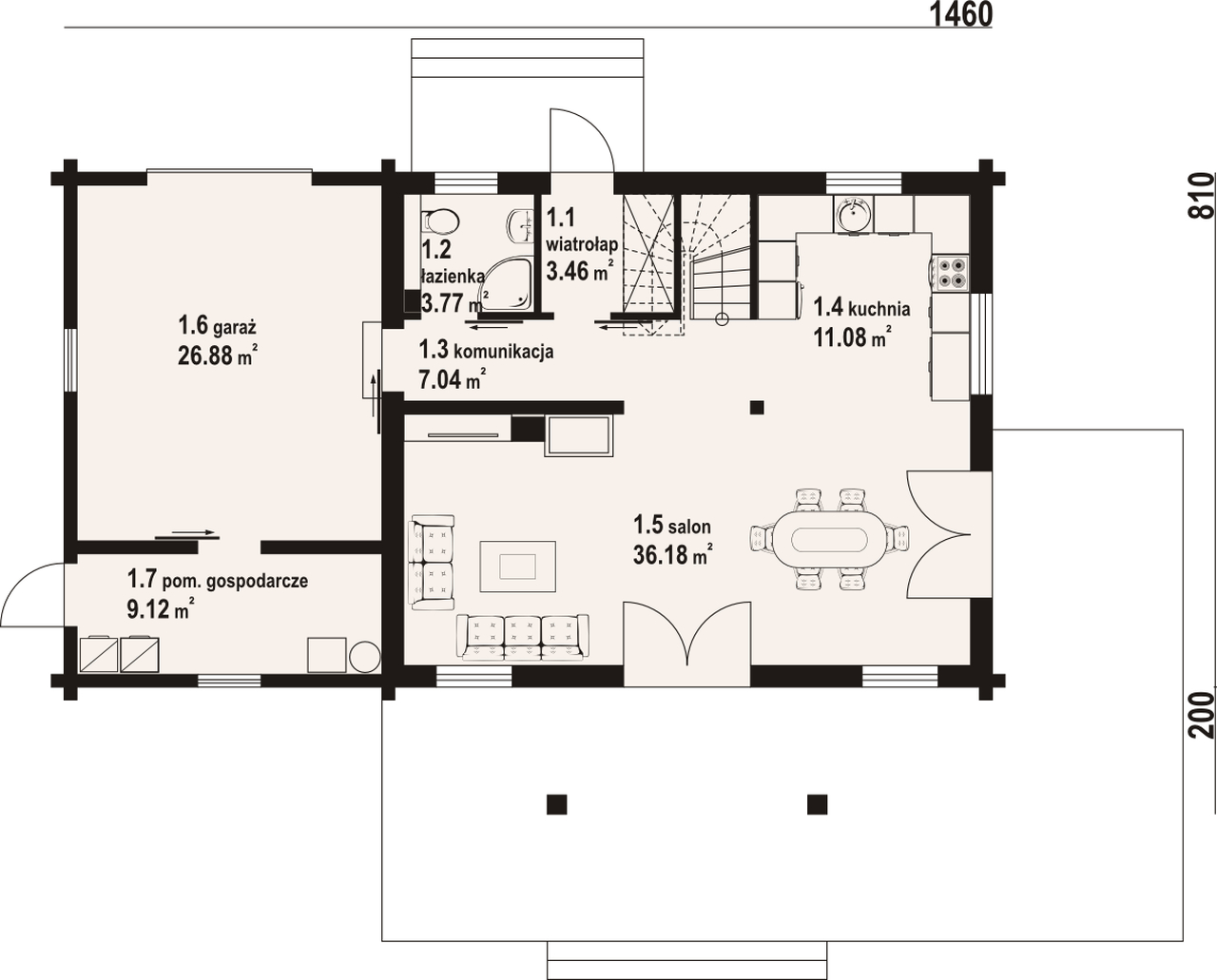
Dom z bali. Duży salon z aneksem kuchennym, kominkiem, wyjściami na taras i schodami na poddasze. Łazienka, wiatrołap, komunikacja, garaż i pomieszczenie gospodarcze. Na poddaszu cztery pokoje, łazienka i komunikacja. Instalacja solarna. Prosta bryła budynku i dach dwuspadowy sprzyjają szybkiej i taniej budowie i niskim kosztom eksploatacji.
Porozmawiajmy o Twoim wymarzonym domu
Zadzwoń
+48 13 30 70 199Napisz do nas
biuro@drewhat.plJesteśmy dostępni w dni robocze: 07:30-16:00


