Informacje podstawowe
Pow. użytkowa
100.39 m2
Część gospodarcza
9.69 m2
Pow. zabudowy
90.2 m2
Parterowy
Tak
Garaż
Nie
Piwnica
Nie
Technologia
Ściany zewnętrzne
szkieletowe
Strop
drewniany
Więźba dachowa
drewniana
Pokrycie dachu
blachodachówka / blacha z posypką
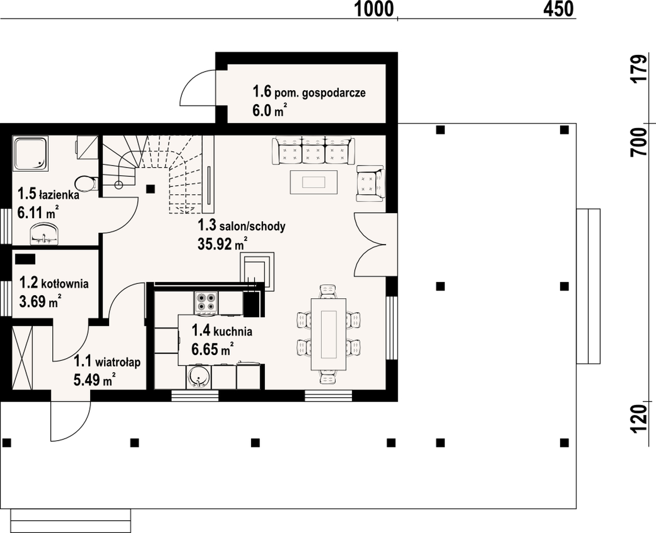
Dom w konstrukcji szkieletu drewnianego. Duży salon z aneksem kuchennym, kominkiem, wyjściem na zadaszony taras i schodami na poddasze. Łazienka, kotłownia i wiatrołap. Na poddaszu trzy pokoje, łazienka, komunikacja i balkon. Zwarta bryła budynku i dach dwuspadowy sprzyjają szybkiej i taniej budowie i niskim kosztom eksploatacji.
Porozmawiajmy o Twoim wymarzonym domu
Zadzwoń
+48 13 30 70 199Napisz do nas
biuro@drewhat.plJesteśmy dostępni w dni robocze: 07:30-16:00


